Logo

How can we help you? 👋

Find step-by-step guides, troubleshooting tips, and feature explainers to get the most out of our platform.

How to share observations with non-ArchiSnapper users

Collaboration with ArchiSnapper

How to share observations with non-ArchiSnapper users

Share a real-time overview of pending items

Last updated on 31 Mar, 2021

With ArchiSnapper, you can share a filtered list of items with third parties. They don't need an ArchiSnapper account to access this list.

Filter observations in the "all observations" page

  1. Go to the "all observations" page in your online account.

  2. Filter the list of observations. For example, you can filter on all items with status NOT OK, assigned to Steve Wood.

  3. Click on "search".

Image

TIP: Sort this list according to your own preference using the "sort" and "grouping" options.


Share the list of filtered observations

You can now share this list in 3 ways:

Image

1. Share a PDF report

  • Select a layout template.

  • Download the PDF with the observations, and share it.

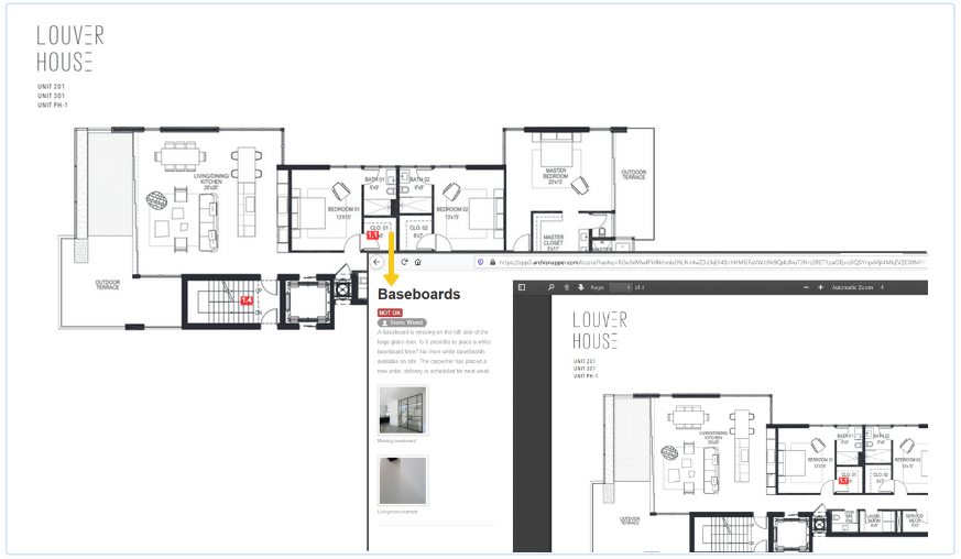
2. Share a floor plan with location pointers

  • Download the PDF file of the floor plan including numbered observations.

  • Share the PDF file with the parties involved.

  • Contacts who open the PDF and click through on the numbered location pointers will see additional info about that observation.

Image

3. Share a link to a real-time overview of the filtered list

  • Send a unique link to the parties involved.

  • They can see a real-time overview of items that match the filter criteria. Here's an example.

  • This link will never change and will always give an updated (real-time) overview on all items meeting the filter criteria.

Image

TIP: You could send this link to external parties at the start of the project. If they save the link as a bookmark in their browser, they can always access all their pending items in real-time.

Want to go a step further?

  • You can also invite assigned parties to collaborate and give feedback on their open items. Read how this works.

  • You can schedule weekly emails to assignees, with their pending items. Read more.

Questions? Support@archisnapper.com.

Did you find this article helpful?
Previous

A weekly email with open items

Next